南京浦口某电站监控系统安装案例
南京浦口某电站监控系统安装案例
配电站监控安装背景:
在当今社会中电力系统是推动经济发展和社会进步的重大力量,那么配电站则是电力系统的重要组成部分。现代人的生活是离不开供电的,那么保证正常的供电是离不开配电站正常运行的。随着城市化进程的加速以及电力需求的日益增长,配电房的管理和监控显得尤为重要。传统的配电房管理方式不仅效率低下,而且存在诸多安全隐患。因此,配电房智能综合监控系统应运而生,为电力行业带来了革命性的改变。
配电站监控安装需求:
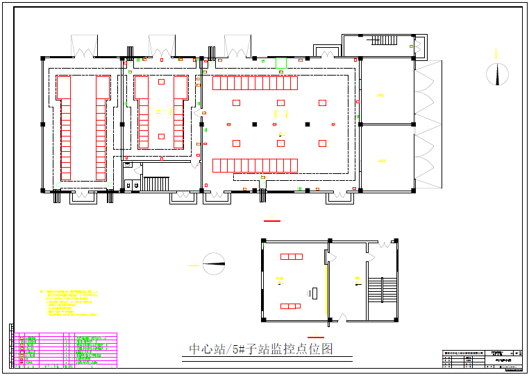
经过公司技术人员上门勘察现场沟通,现场一共有5个子站一个中心站一个六个配电站安装监控,需要每个子站安装监控摄像头24小时不间断对现场设备进行视频录像并且录像需保存三个月,所有视频画面在中心站值班中心显示。
配电站监控安装设计:
根据甲方需求我公司项目经理对现场图纸进行深化标记点位,并采用海康威视400万白光全彩摄像机配合400万全彩球机对现场设备进行全方位无死角覆盖。



配电站监控安装项目实施:
经过前期的项目方案设计,项目报价后,最终确定本项目于8月底开工,项目工期15天。公司项目经理组织人员进行穿管布线,设备安装及调试。



配电站监控项目验收:
经过两周的奋战,配电站监控安装项目顺利完工,在甲方领导及实际操作人员的陪同下一起对项目进行验收。
